Home
Products
Show Brief
Workshop Brief
Equipment
Download
About Us
Contact Us
中文版
|
English
Roller Conveyor
Flexforce Expandable & Flexible Conveyor
Skatewheel conveyor
Belt Conveyor
Loader Conveyor
Chain Driven Conveyor
Overhead Chain Conveyor
trolley chain & parts
project conveyor
Slat Chain Conveyor
Vertical Conveyor
Screw Conveyor
Wire Mesh Conveyor
Conveyor System
Production & Assemble Line
Conveyor Roller
Conveyor Stand
Joloda Bearing Wheel & Pulley
Omni wheel
Ball Transfer Unit
Joloda Flow Rail & Parts
Overhead Trolley Chains & Parts
Pipe Rack & Parts
Slew Bearing
Door Hardware
Castor Part
CNC Fabricate
Sheet Metal & Stamping
Plastic Injection
Cold Heading
Casting
Machining
Products
 >> Type of product to remove the
Name:
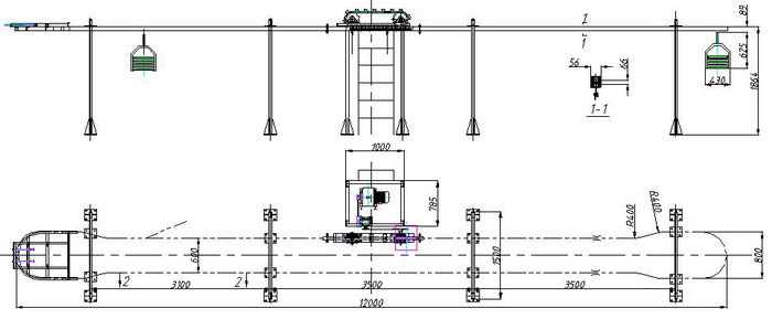
overhead conveyor
Model:
OC model
Information:
make as per customer detail requirement
Technical Info
Video & Pictures
please provide detail information which necessary for quotation
Copyright © 2009 tycon.net All Rights Reserved
闽ICP备05001223号